dragon Опубликовано 22 декабря, 2014 Жалоба Опубликовано 22 декабря, 2014 Переставь насос на выход расширительного бака, чтобы насос с бака сосал и в систему нагнетал. Цитата
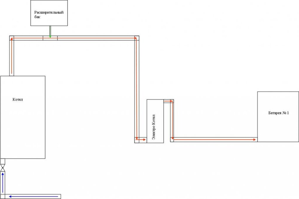
Девяткин Опубликовано 23 декабря, 2014 Жалоба Опубликовано 23 декабря, 2014 @dragon, ни понял а как это воплотить в жизнь? у меня вот такая система Цитата
dragon Опубликовано 23 декабря, 2014 Жалоба Опубликовано 23 декабря, 2014 Сразу за тройником расширительного бака врезаешь насос. Чтобы насос нагнетал в контур давление , а сам брал жидкость без сопротивления с бака. Цитата
Девяткин Опубликовано 23 декабря, 2014 Жалоба Опубликовано 23 декабря, 2014 @dragon, хм как то странно просто сколько читал что насос ставится на обратке непосредственно перед котлом Цитата
Borman Опубликовано 23 декабря, 2014 Жалоба Опубликовано 23 декабря, 2014 @Девяткин, стоит у тебя насос, на обратке, правильно. А предложение переставить несет в себе мысль дать небольшой подпор в систему и тем самым снять "повод" завоздушивания. Когда зальешь "гликоль" вернешься к той же проблеме, но уже в большем масштабе. Как верно сказал Антон, все гликоли более текучи, несмотря на то, что они более вязкие. Гликоль покажет течь, но устранение будет дороже как по деньгам, так и по здоровью в случае применения этиленгликоля. Как предложение (решение за тобой) поставить мембранный бак, систему закрыть и накачать давление хотя бы обычным "малышом". Найдешь течь, вернешься в открытой системе. Цитата
Девяткин Опубликовано 23 декабря, 2014 Жалоба Опубликовано 23 декабря, 2014 @Borman, ну давление дать в систему мне легко и просто отсоеденить расширительный бак заглушить трубку и включить подпитку системы она у меня от водопровода и тем самым давление появится в системе до 1,8 бар. Наверное на выходных так и сделаю тк воздух с каждым днем все больше и больше достает Цитата
Craig Опубликовано 23 декабря, 2014 Жалоба Опубликовано 23 декабря, 2014 Может просто холодает а котел дает локальные перегревы? Когда была открытая система - тоже по ведру в неделю заливал. Сейчас система закрытая и утечки меньше (хотя тоже есть) Имхо поменять на закрытый бачок и использовать туже воду - я так и делаю. Будущему развитию это не помешает а количество гемора уменьшит. Цитата
Девяткин Опубликовано 23 декабря, 2014 Жалоба Опубликовано 23 декабря, 2014 так факт то что у меня доливка минимальная раз в месяц литра 3-4 ни более Цитата
Craig Опубликовано 23 декабря, 2014 Жалоба Опубликовано 23 декабря, 2014 Ну если давление в системе будет, не даст не пролезть воздуху лишнему, да и увеличит температуру кипения. А для экстренного сброса клапанок Цитата
dragon Опубликовано 23 декабря, 2014 Жалоба Опубликовано 23 декабря, 2014 (изменено) просто сколько читал что насос ставится на обратке непосредственно перед котлом Это гдей-то ты такое прочитал? В рекомендациях и примерах от Grundfos обратное твой случай - 13 страница http://exemer.rezerv...s-otoplenie.pdf Изменено 23 декабря, 2014 пользователем dragon Цитата
Девяткин Опубликовано 23 декабря, 2014 Жалоба Опубликовано 23 декабря, 2014 @Craig, боюсь я замкнутой системы! У меня на Сахалине была замкнутая система, стоял гидробак сначала на 8 литров потом поменял на 23 л., так же стоял подрывной клапан все по уму! Однако при закипании котла почему то хоть клапан и срабатывал и выбрасывал пар на улицу но видать давление все равно наростало и в одном и том же месте с батареи вырывало трубу соответственно все это дело выбрасывало в помещение заливая горячей водой с паром поэтому как то с открытой системой проще бывает на дню по 2-3 раза закипает котел но негативных последствий ни наступает. Цитата
Девяткин Опубликовано 23 декабря, 2014 Жалоба Опубликовано 23 декабря, 2014 @dragon, а хз щас точно ни помню где читал да и первую систему мне делал тесть а он много лет сантехником работал и так сделал хотя я ему говорил что надо на подачу на что он мне ответил что насос ставится на обратку. В общем сколько людей столько и мнений Цитата
dragon Опубликовано 23 декабря, 2014 Жалоба Опубликовано 23 декабря, 2014 (изменено) сколько людей столько и мнений Есть мнение людей, и есть понимание процесса. Я всегда за второе. Ну я тебе привел не мнение людей, а рекомендацию производителя, кроме того, когда насос забирает жижу с расширительного бака он не будет работать насухую, и наполнение системы будет более правильным, ну и самое главное в зоне засасывания давление понижается и если ты ставишь его на обратку после длинной системы понижается значительно в результате падает у воды давление и температура кипения, ты можешь заставить (в зависимости от температуры носителя) кипеть воду перед насосом - у тебя упадет циркуляция - начнет кипеть котел. Так что из здравого смысла я бы на обратку категорически не ставил. Вот тебе наглядный график зависимости температуры кипения от давления. он много лет сантехником работал и так сделал хотя я ему говорил что надо на подачу Вот и верь теперь сантехникам Изменено 23 декабря, 2014 пользователем dragon Цитата
Ser-Bat Опубликовано 23 декабря, 2014 Жалоба Опубликовано 23 декабря, 2014 я тебе привел не мнение людей, а рекомендацию производителя А кто рекомендацию производителя пишет? насос забирает жижу с расширительного бака он не будет работать насухую Как он будет работать на сухую, если система заполнена? Даже если будет воздушится, то насос стоит обычно в низшей точке. наполнение системы будет более правильным Почему? ну и самое главное в зоне засасывания давление понижается и если ты ставишь его на обратку после длинной системы понижается значительно в результате падает... Так и температура у длинной системы на обратке значительно ниже, тем более при последовательной схеме. Не большой специалист, но все циркуляционные насосы расчитаны на температуру под 100гр.С? Цитата
dragon Опубликовано 23 декабря, 2014 Жалоба Опубликовано 23 декабря, 2014 (изменено) А кто рекомендацию производителя пишет? Разработчики Почему? Ибо в данной схеме при заполнении нужно будет просто доливать в расширительный бак жидкость, насос сам прокачает без воздуха под давлением систему. Если он на обратке стоит, то пока до него жидкость самотеком не дойдет он будет работать насухую. Так и температура у длинной системы на обратке значительно ниже, тем более при последовательной схеме. Ну не особо и ниже, обычно градусов 20 перепад, что при 70-80 градусов уже можно получить закипание воды при понижении давления на входе. Кстати по той же причине я бы не ставил насос до расширительного бака. Расширительный бак должен выполнять роль уравновешивателя давления. Изменено 23 декабря, 2014 пользователем dragon Цитата
dragon Опубликовано 23 декабря, 2014 Жалоба Опубликовано 23 декабря, 2014 Ну либо самый простой вариант - поставить мембрану и накачать 1.5 очка давления. Цитата
krun1979 Опубликовано 23 декабря, 2014 Жалоба Опубликовано 23 декабря, 2014 (изменено) @dragon, полностью поддерживаю. насос ставится на подачу. рабочая температура до 125 ,если не ошибаюсь. Изменено 23 декабря, 2014 пользователем krun1979 Цитата
dragon Опубликовано 23 декабря, 2014 Жалоба Опубликовано 23 декабря, 2014 боюсь я замкнутой системы! тогда 13 страница руководства - точно твой случай. Цитата
krun1979 Опубликовано 23 декабря, 2014 Жалоба Опубликовано 23 декабря, 2014 @Девяткин,про минимальную доливку 3л в месяц... я доливаю 200-300 грамм в год. Цитата
dragon Опубликовано 23 декабря, 2014 Жалоба Опубликовано 23 декабря, 2014 Ничего не доливал 3 года уже, система под давлением с пропиленгликолем. Никакой пакли и фумленты, всё собрано с герметиком Permatex 89148 (я его везде мажу, аки маньяк) Цитата
krun1979 Опубликовано 23 декабря, 2014 Жалоба Опубликовано 23 декабря, 2014 (изменено) у меня на 8 год эксплуатации начало капать с 3 кранов на батареях. причем что капает увидел по пятнам на паркете и подтекам на кранах. пришлось поменять. а так первые лет пять ничего и не доливал. на стр.71 хорошо иногда перечитывать методичку. В “закрытых системах”, если возможно, насос размещают на обратном трубопроводе из-за более низкой температуры на данном участке. Изменено 23 декабря, 2014 пользователем krun1979 Цитата
dragon Опубликовано 23 декабря, 2014 Жалоба Опубликовано 23 декабря, 2014 @krun1979, У Девяткина система открытая, не подходит. В закрытых проблемы с закипанием нет, там давление выше. Цитата
krun1979 Опубликовано 23 декабря, 2014 Жалоба Опубликовано 23 декабря, 2014 я и не спорю. там же написано-в закрытых. Цитата
Девяткин Опубликовано 24 декабря, 2014 Жалоба Опубликовано 24 декабря, 2014 @dragon, про 13ю страницу ни понял! по температуре в система у меня в среднем перепад 10-15 градусов тобиш при 80-85 на подаче на обратке 70-75 По доливке считаю нормально тк во первых у меня расширительный бак ни закрыт крышкой и идет испарение и частенько котел закипает и пар выбрасывается из расширительного. Надо посмотреть инструкцию к насосу циркуляционному если держит больше 100 градусов то переставлю на подачу. А по части работы на сухую то я пока ни наполнил полностью систему ни включал ее добился сначала чтоб вся система была без воздуха потом включил насос и выгнал остатки воздуха Цитата
Охотники за приключениями Опубликовано 24 декабря, 2014 Жалоба Опубликовано 24 декабря, 2014 (изменено) @Девяткин, а чего у тебя такая температура большая? у меня сейчас в -5 35-40, в -14 45 делал, температура в доме +23+25 . При этом у меня отопление первого этажа разведено полностью в цоколе (не очень утепленном) соответственно теплопотери в нем. Но у меня 2х трубная система 25 мм. Изменено 24 декабря, 2014 пользователем Охотники за приключениями Цитата
Рекомендуемые сообщения
Присоединяйтесь к обсуждению
Вы можете написать сейчас и зарегистрироваться позже. Если у вас есть аккаунт, авторизуйтесь, чтобы опубликовать от имени своего аккаунта.